Haistings Park 2022

 

8 Hastings Park - Noosa Heads


RDS SCOPE - 2023

Interior Design & Documentation

BUILDER

Darren Magee Constructions

PHOTOGRAPHER

VC Media

LOCATION

Noosa Heads

 

In mid-2022, RDS undertook an exciting renovation project with Melbourne-based clients to transform a holiday letting apartment located on the iconic Hastings Street in Noosa. This apartment, boasting breath taking views of Hastings Street Beach and the lush Noosa National Park, needed a comprehensive makeover to enhance its functionality and aesthetics.

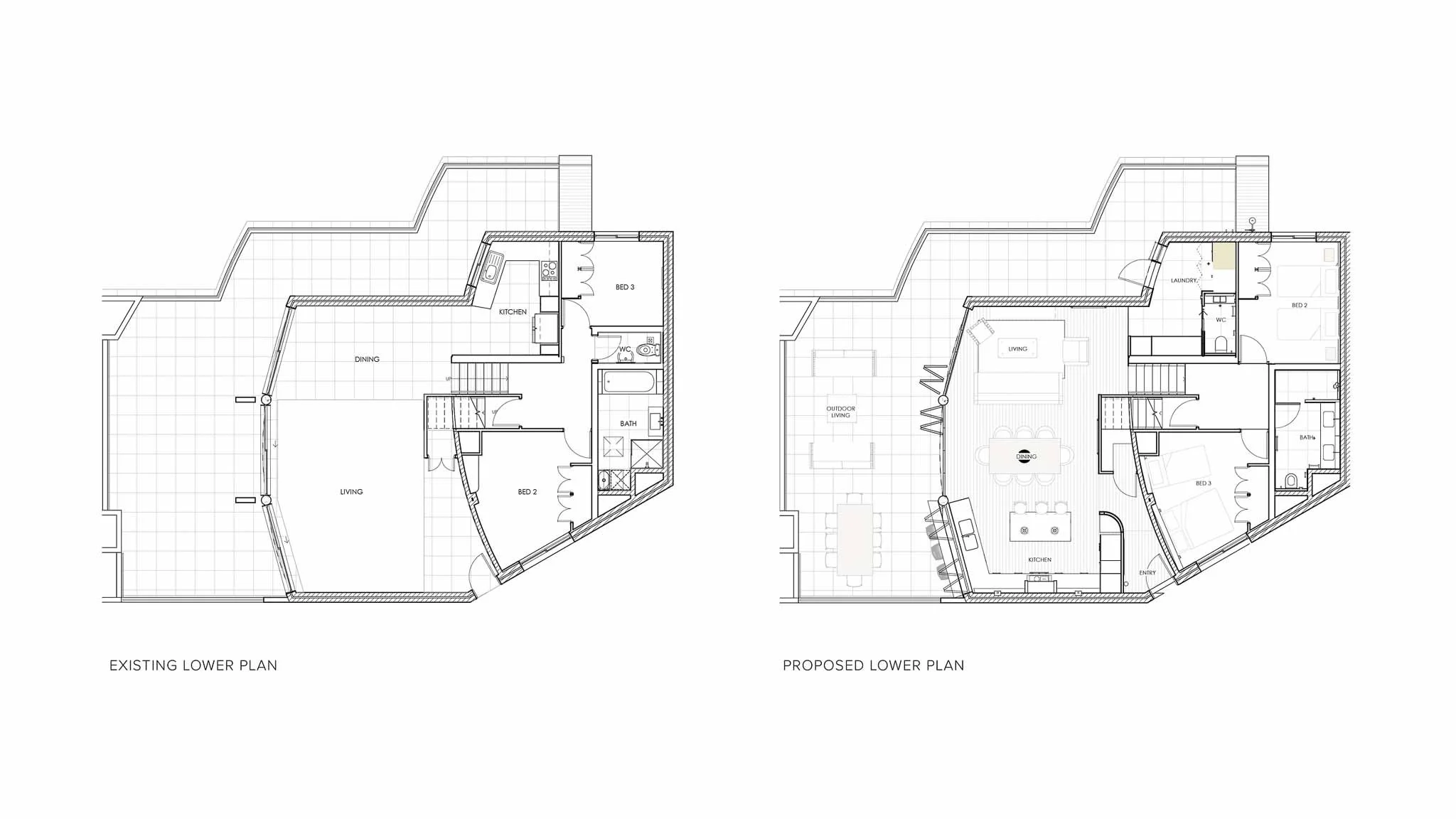
The renovation involved a complete gut of the existing space, allowing for significant reconfiguration to better serve the needs of the owners and holidaymakers. One of the most transformative aspects of the project was the relocation of the kitchen. Originally positioned at the back corner of the apartment, the kitchen was moved to the front door entrance, freeing up the floor plan to create an open and airy space for the kitchen, dining, and living areas. This strategic move not only enhanced the apartment's layout but also connected the kitchen to the outdoor balcony, making it an ideal spot for holidaymakers to entertain while enjoying the serene treetop views overlooking Hastings Street Beach. As a bonus, relocating the kitchen allowed for a new laundry space and a powder room servicing the lower level.

 
 

A key change was the addition of a separate toilet on the middle level, conveniently shared by the guest bedrooms. The master bedroom's floor plan was reimagined to create a more open and luxurious space by merging the walk-in robe with the ensuite, along with the creation of a separate powder room. This thoughtful redesign ensured a seamless flow and elevated the overall comfort and usability of the apartment.

 
 
 

Our clients expressed a deep appreciation for classic Hamptons style, which became a central theme throughout the renovation. Our studio merged this aesthetic through carefully selected finishes and joinery details. This allowed our wonderful client to inject her personality and her love for Costal Hampton her selections of feature lighting, window furnishings, furniture, and styling, amplifying the experience of holidaymakers.

 
 

Floor Plans

 

Before Photos